
Property Description
The vision for this Calgary residence was to fuse timeless character with uncompromising modern performance. Our journey began with a complete down-to-the-studs renovation, allowing us to install entirely new plumbing and electrical infrastructure—the unseen foundation of a truly modern home.
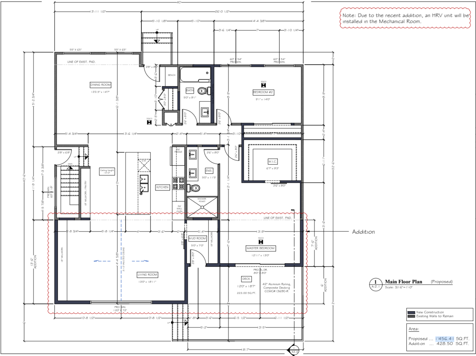
To enhance the living space for a growing family, we seamlessly integrated a 400-square-foot extension, creating a generous new great room. The home's breathtaking centerpiece is this new space, where a soaring 14-foot vaulted ceiling draws in natural light and creates an atmosphere of airy sophistication. Every finish was meticulously selected to ensure a cohesive flow between the original structure and its stunning new addition, resulting in a home that is as reliable as it is beautiful.
Key Features:
Complete "down-to-the-studs" renovation
Full replacement of all plumbing, HVAC, windows and electrical systems
Spacious 400 sq. ft. rear extension
Dramatic 14-foot vaulted ceiling in the main living area
Property Details
Property Type
House
Bedrooms
4
Bathrooms
Size
3
1457 sq ft
Property Location
2319 56 Avenue Southwest, Calgary, AB T3E 1M7, Canada

